新築物件:帯広市西8条南15丁目3番地11
成約済み
最終更新日:2026年2月6日

- 価格
- 成約済
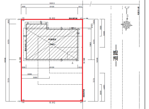
- 所在地
- 帯広市西8条南15丁目3番地11
- 敷地面積
- 158㎡(47.79坪)
- 建物面積
- 100.19㎡(30.30坪)
- 築年数
- 令和8年2月完成予定
- 交 通
- JR帯広駅 徒歩13分
- 間取り
- 3LDK
- 設 備
- システムキッチン(食洗機付)・ユニットバス・洗面化粧台・温水洗浄トイレ・エコジョーズ(都市ガス)・セントラル暖房(温水パネル) ・衣類乾燥機・照明器具・エアコン・ドアホン・カーテンレール・玄関土間床暖・散水栓等
- 仲介手数料
- 自社物件につき不要です。
- 備 考
- 【通学区域】花園小学校・第五中学校
新築住宅瑕疵保険加入済物件(JIO)
住宅ローン控除対象
ZEH仕様住宅(ZEH Oriented認定住宅)
- 取引態様
- 売主
